Hi there! How can we help you today?
Dera Bassi, Punjab
Explore Our Exciting New Property Listings Now Available in Prime Locations!
Discover Your Dream Home with Our Latest Listings and Personalized Services!
Take Advantage of Limited-Time Offers on Luxury Homes with Stunning Features!
Join Us for Exclusive Open House Events This Weekend and Find Your Perfect Home!
Shree Green Space stands out among Panchkula real estate projects as a well-planned residential development in Shimlipur, Sector 14 Panchkula Extension. Built by the reputable Shree Vardhman Group, this project spans 8 acres and provides affordable yet comfortable living options for families. It's perfect for first-time buyers interested in real estate in Panchkula or residential projects in Panchkula, blending urban convenience with green spaces. The apartments are designed for modern lifestyles, ensuring easy access to key areas while promoting a serene environment. As part of upcoming residential projects in Chandigarh's vicinity, it appeals to those eyeing Panchkula commercial property for sale or high-rise projects in Panchkula. With its focus on quality and affordability, it's a solid choice in the list of GMADA-approved residential projects in Panchkula.
This project embraces Vastu principles to foster harmony and well-being, a key feature in many real estate company in Panchkula developments. Entrances face auspicious directions for positive vibes, kitchens are positioned southeast for prosperity, and bedrooms avoid beams overhead to promote restful sleep. Open spaces encourage natural light and ventilation, aligning with Vastu's emphasis on balance. As a Vaastu-compliant high-rise building in Panchkula, it ensures residents enjoy peace and success, setting it apart in Panchkula project listings.






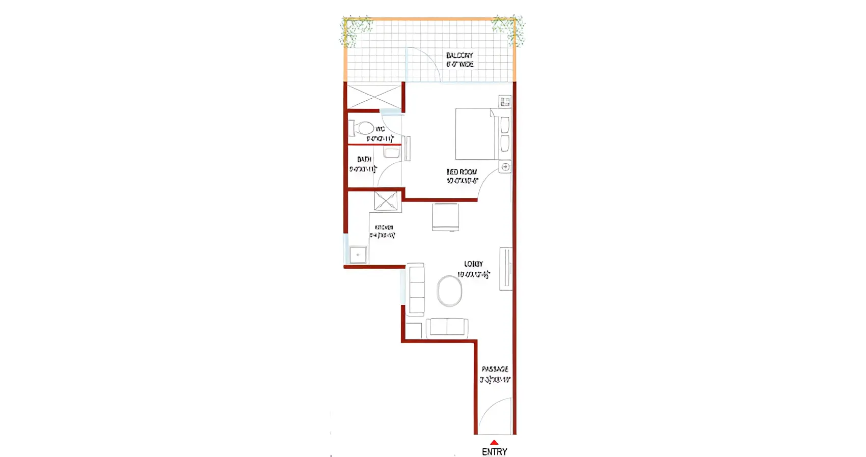
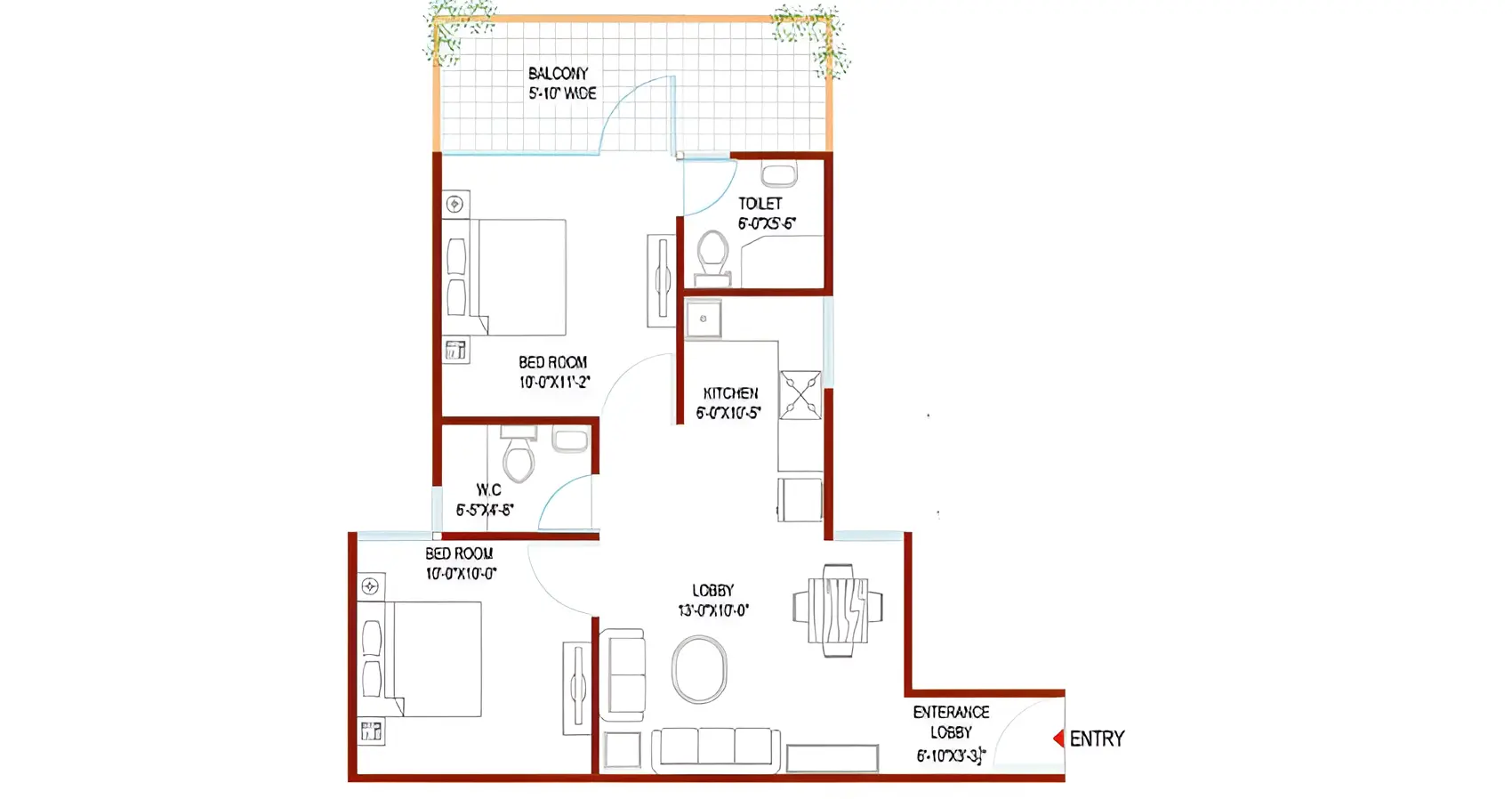
| Floor Type | Super Area (Sq. Ft.) | Carpet Area (Sq. Ft.) | Balcony Area (Sq. Ft.) | Approx. Pricing (INR) |
|---|---|---|---|---|
| 1 BHK | 515 | 323 | 50 | 21.63 Lakhs |
| 1 BHK | 535 | 335 | 55 | 22.47 Lakhs |
| 2 BHK | 735 | 490 | 70 | 30.66 Lakhs |
| 2 BHK | 780 | 511 | 75 | 32.76 Lakhs |
The Shree Vardhman Group, with over 30 years in real estate, handles design in-house, creating functional spaces seen in Panchkula commercial projects and residential plots in Panchkula. No external architect is noted, but their team focuses on innovation. The group's chairman, Dr. Kamal Sethia, received an award for excellence in real estate, highlighting their commitment. Known for projects across Haryana, they prioritize quality in real estate commercial projects in Panchkula and luxury residential projects in Panchkula.
Nearby landmarks and essential places configured from the project admin panel.
“Construction Update : Started in March 2016, finished with possession starting February 2020.”

Dera Bassi, Punjab

Dera Bassi, Punjab
SellingHi there! How can we help you today?