Discover Your Dream Home with Our Latest Listings and Personalized Services!
Explore Our Exciting New Property Listings Now Available in Prime Locations!
Join Us for Exclusive Open House Events This Weekend and Find Your Perfect Home!
Take Advantage of Limited-Time Offers on Luxury Homes with Stunning Features!
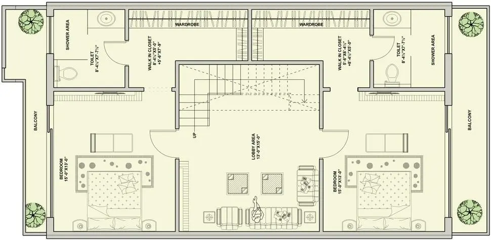
Elena Luxury Villas stands out among the best real estate projects in Mohali, nestled in the vibrant Aerocity area. This premium residential development by Riverdale Group caters to those who value a blend of elegance, comfort, and connectivity. As one of the top residential projects in Mohali, it features independent 4 BHK duplex villas designed for modern families. Spread across a gated township, it emphasizes green living in a pollution-free environment, making it a standout choice in Mohali residential projects. With its strategic location on Airport Road, it's perfect for professionals and investors eyeing upcoming housing projects in Mohali or luxury residential projects in Mohali. The project aligns with high-rise projects in Mohali trends but offers villa-style privacy, ensuring a serene lifestyle amid the region's growth.
Elena Luxury Villas is thoughtfully designed with Vastu principles in mind, ensuring positive energy flow. East-facing orientations promote prosperity, while spacious layouts avoid clutter for harmony. This makes it appealing for buyers seeking Vastu-compliant homes in housing projects in Mohali or residential projects in Chandigarh.


| Floor Type | Super Area (Sq. Ft.) | Carpet Area (Sq. Ft.) | Balcony Area (Sq. Ft.) | Approx. Pricing (INR) |
|---|---|---|---|---|
| 4 BHK Duplex Villa | 3641 | ~2500 (estimated based on standard ratios) | ~200 (including terrace) | 1.60 Cr - 2.50 Cr |
Riverdale Group, the builder behind Elena Luxury Villas, is renowned for creating iconic landmarks in real estate companies in Mohali. With a vision for global standards, they've delivered projects emphasizing quality and innovation. Awards include: National Real Estate Excellence Awards - Best Luxury Real Estate Company (2017), ET Now Real Estate Awards - Most Promising Delivery (2019), BAM Awards - Best Builder of the Year (2018), and Golden Globe Tiger Awards - Commercial Property of the Year (2018).
“Construction Update: Started around 2020; completed and ready for possession as of 2025.”
Explore nearby amenities to precisely locate your property and identify surrounding conveniences, providing a comprehensive overview of the living environment and the property's convenience.